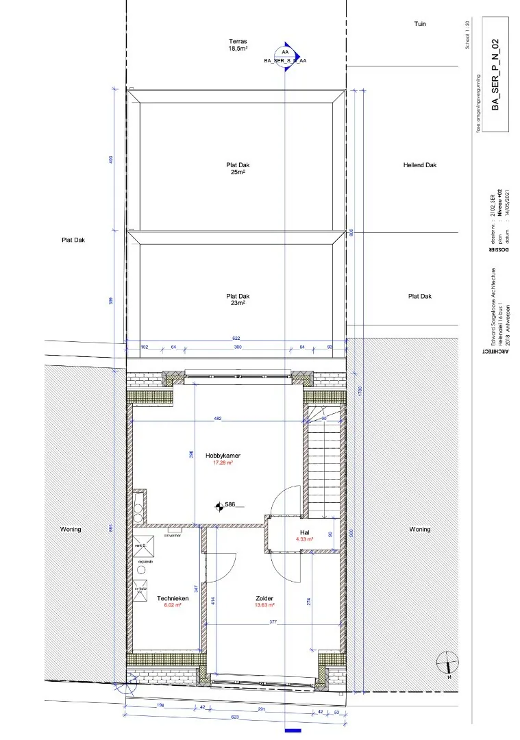
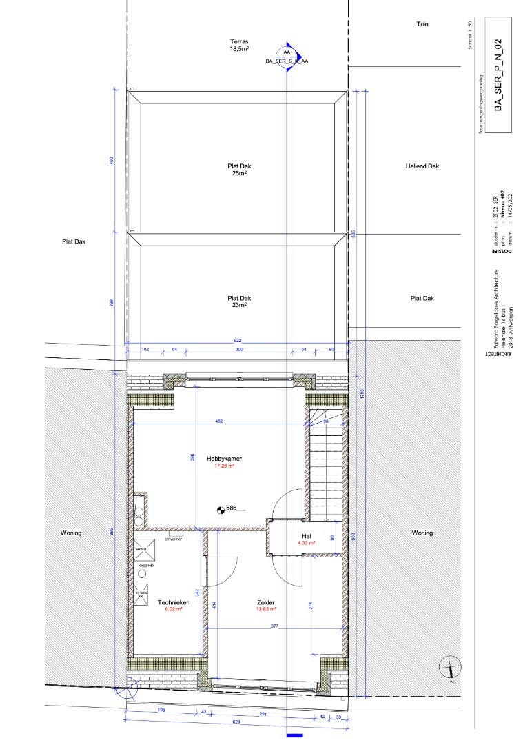
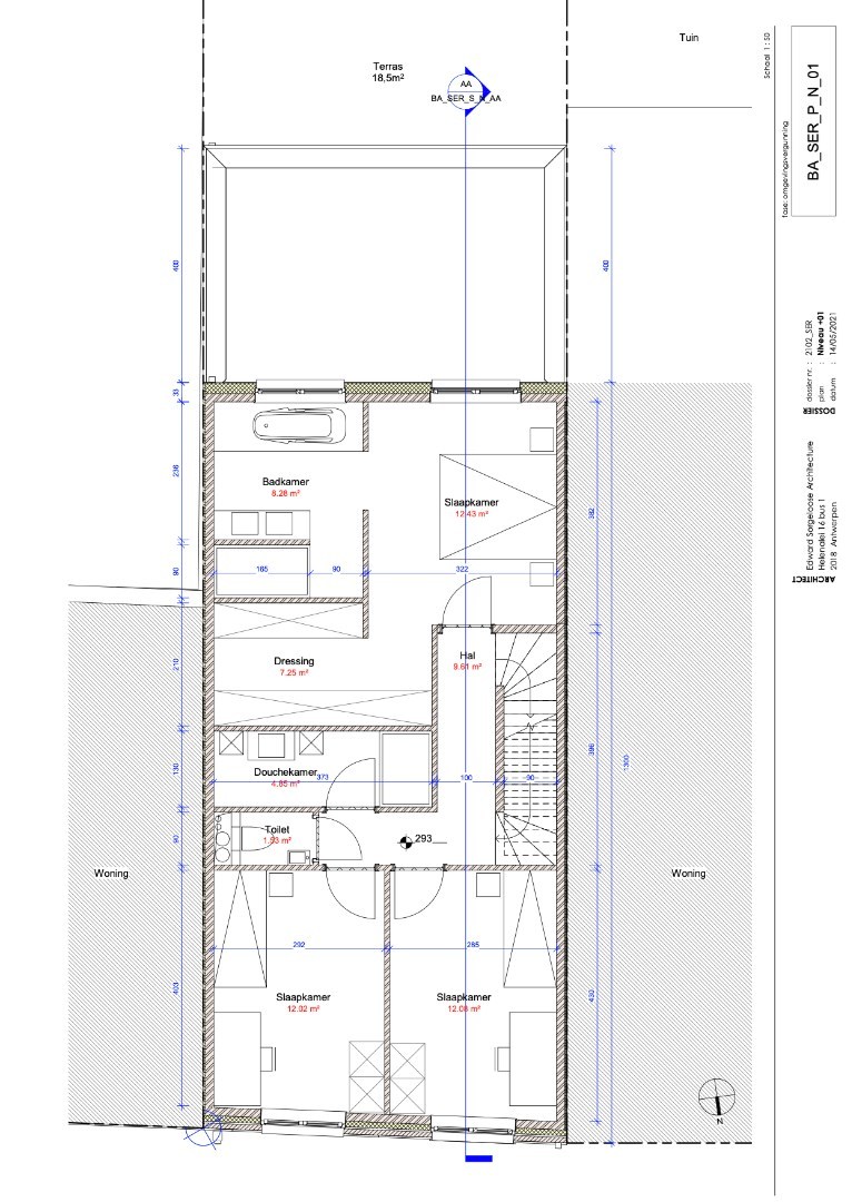
Deze bouwgrond van 439 m² in het gezellige Niel biedt een buitengewone kans! Met een reeds vergund bouwplan kan u hier een prachtig rijhuis realiseren met maar liefst drie verdiepingen én een aangename tuin – perfect voor gezinnen of wie houden van een groene buitenruimte. De gunstige ligging combineert rust en bereikbaarheid, met nabijheid van winkels, scholen en openbaar vervoer. Op de bouwgrond kan een woning gebouwd worden van ca. 6,22 meter breedte. De bouwdieptes bedragen 17 meter voor het gelijkvloers, 13 meter voor de eerste verdieping en 9 meter voor de 2e verdieping, goed voor een totale bewoonbare oppervlakte van +/- 235 m². Bouwplannen te verkrijgen via kantoor!

Niet gelegen in mogelijks overstromingsgevoelig gebied, niet gelegen in afgebakend overstromingsgebied of afgebakende oeverzone, niet gelegen in risicozone overstromingen, woongebied, stedenbouwkundige info in aanvraag. Voor meer info ga naar www.coenenvastgoed.be of bel 03/375.82.92

Perceelopp.
439 m²

Algemeen

Adres:Matenstraat 52
Niel
Referentie:TK/1155
Vraagprijs:€ 155.000/totaal
Type:Grond
Beschikbaar vanaf:Onmiddellijk
Perceeloppervlakte:439 m²
Perceelbreedte:6 m
Perceeldiepte:70 m
Type constructie:Traditioneel

Indeling

Tuin:300 m²

Comfort

Winkel:Ja - op 1500 m tot 2000 m
Ontspanning:Ja - op 1000 m tot 1500 m
Restaurant:Ja - op 1500 m tot 2000 m

Wettelijke gegevens

Stedenbouwkundige vergunning:Ja
Voorkooprecht:In aanvraag
Verkavelingsvergunning van toepassing:In aanvraag
Maatregelenregister:In aanvraag
Stedenbouwkundige bestemming:Woongebied
Dagvaarding en herstelvordering:Geen rechterlijke herstelmaatregel of bestuurlijke maatregel opgelegd
Overstromingsgevoelig:Geen overstromingsgevoelig gebied
Overstromingsgebied:Geen afgebakende zones
Overstromingskans perceel (P-score):A
Overstromingskans gebouw (G-score):A
Erfgoed:Geen beschermd erfgoed
Niel
Matenstraat 52

€ 155 000


U moet akkoord gaan met het privacybeleid van deze website
* Verplicht in te vullen
Niel
Matenstraat 52

€ 155 000

Niel
Matenstraat 52

€ 155 000