Nieuwbouw magazijn ±1.200 m² op toplocatie in bedrijvenpark De Zwaan – Schoten!
€ 19 000 /maand
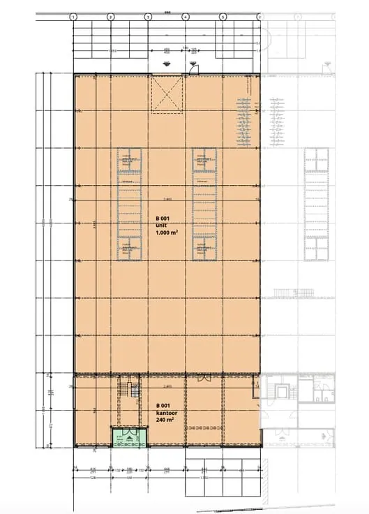
In het bedrijvenpark De Zwaan in Schoten bevindt zich dit recente bedrijfsgebouw met een magazijnruimte van ca. 1.200 m² op een uitstekende locatie vlak bij de op- en afritten van de E19. Dankzij de goede verbindingen en de brede toegangswegen is het pand vlot bereikbaar voor zowel personenwagens als groot transport.
Het magazijn heeft een vrije hoogte van ongeveer 7 meter en is uitgerust met een sectionale poort, LED-verlichting, brandblusapparaten en een elektrische verzwaring tot 166 kVA (240A), geplaatst door Fluvius. Daarnaast is er een nachtpoort (sluis) voorzien. Een mezzanine van circa 200 m² biedt extra opslagruimte en omvat tevens sociale voorzieningen zoals sanitair, douches, kleedruimte en een eet- of bureauruimte. Bijgevoegd kunnen kantoorruimtes van telkens 240 m² op het gelijkvloers en de eerste verdieping worden mee gehuurd. Deze ruimtes bestaan uit een combinatie van individuele kantoren, vergaderzalen en open kantoorruimte, aangevuld met sanitaire voorzieningen en een uitgeruste keuken.
Rond het gebouw zijn 17 parkeerplaatsen beschikbaar, met uitbreidingsmogelijkheden. Dit pand vormt een ideale combinatie van magazijn, kantoor en uitstekende bereikbaarheid.
De huurprijs voor dit volledige nieuwbouwproject bedraagt €19.000 per maand, exclusief gemeenschappelijke lasten - per ruimte te bespreken!
Nabij school, winkels, autosnelweg, openbaar vervoer, etc. Voor meer info ga naar www.coenenvastgoed.be of bel 03/375.82.92.
Algemeen
| Adres: | Brechtsebaan 917 Schoten |
| Referentie: | TH/1161 |
| Prijs: | € 19.000/maand |
| Type: | Opslagruimte |
| Beschikbaar vanaf: | In overleg |
| Perceeloppervlakte: | 1.680 m² |
| Perceelbreedte: | 25 m |
| Perceeldiepte: | 50 m |
| Bouwjaar: | 2025 |
| Algemene staat: | Normaal |
| Verhuurbare vloeroppervlakte: | 1 680 m² |
Indeling
| Douchekamer: | 2 |
| WC: | 4 |
| Keuken: | 15 m² |
Bedrijfshal: | |
| Oppervlakte: | 1 200 m² |
| Vrije hoogte: | 7 m |
Bedrijfsruimte - kantoorruimte: | |
| Oppervlakte: | 480 m² |
| Op verdieping: | 1 |
| Voorzieningen: | Inbouwarmaturen |
Comfort
| Snelweg: | Ja - op 2000 m tot 3000 m |
| Bushalte: | Ja - op minder dan 500 m |
Wettelijke gegevens
| Stedenbouwkundige vergunning: | In aanvraag |
| Voorkooprecht: | In aanvraag |
| Verkavelingsvergunning van toepassing: | In aanvraag |
| Stedenbouwkundige bestemming: | In aanvraag |
| Dagvaarding en herstelvordering: | In aanvraag |
| Overstromingsgevoelig: | Niet meegedeeld |
| Overstromingsgebied: | Niet meegedeeld |
| Overstromingskans perceel (P-score): | In aanvraag |
| Overstromingskans gebouw (G-score): | In aanvraag |
| Erfgoed: | Niet meegedeeld |